Gelegenheit Nr. 30: Sakralbau/ Kirche in guter Innenstadtlage unweit des Wockersees
Matterport 360° Aufnahmen im 3D Format!
Das ansprechende moderne Kirchengebäude in Massivbauweise liegt in der Innenstadt von Parchim, unweit des Wockersees.1996 wurde der Bau errichtet und mit Klinkersteinen verblendet. Die Fenster sind teilweise künstlerisch mit Bleiverglasung gestaltet worden.
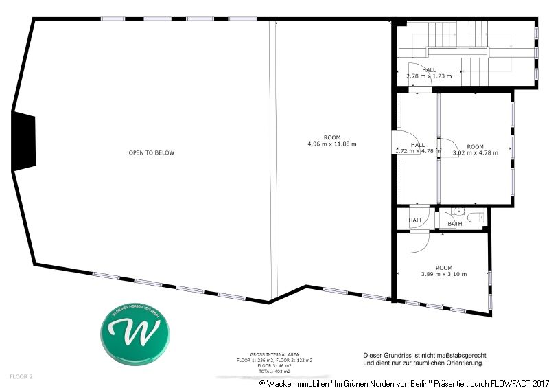
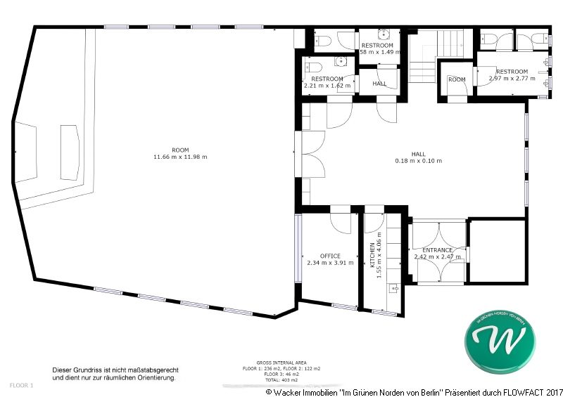
Das Objekt besteht aus 3 Etagen, im Erdgeschoss befindet sich der Andachtsraum mit ca. 180 Sitzplätzen, welcher ca. 123 m" misst, die Eingangshalle, die Küche, einen Mutter-Kind-Raum, die sanitären Anlagen sowie ein Vorrats- und ein Geräteraum. Die Wohn- und Nutzfläche des Erdgeschosses beträgt da. 214 m².
Im 1. OG findet man den Zugang zu der Empore, einen weiteren Kinderraum und die Sakristei. Auch ein weiteres WC ist hier zu finden. Die Wohn- und Nutzfläche beläuft sich hier im 1. OG auf ca. 93 m².
Das 2. OG mit ca. 25 m² beherbergt noch einen Jugendraum und einen Abstellraum.
Insgesamt liegen wir bei diesem Objekt bei einer Wohn- und Nutzfläche von ca. 332 m², das gesamte Grundstück umfasst eine Fläche von ca. 703 m².
Alle Erschließungskosten sind bezahlt, es liegen keine öffenen Rechnungen vor. Die Ablösebeiträge zum Sanierungsbeitrag (Sanierungsgebiet) der Stadt sind beglichen.
Die Immobilie ist für verschiedene Nutzungen geeignet, z.B. für Arztpraxen, Galerien/ Ateliers, Austellungsräume, Geschäftspräsentationen, Unternehmenssitz, zur Tagespflegeeinrichtung, Tanzschulen o. ähnliches.
Ein Nutzungsänderungsantrag bei Umnutzung (außerhalb einer konfessionellen Nutzung) ist zwingend.
Alle Maße, Raumaufteilungen Quadratmeterangaben sind ca.-Angaben und können abweichen!
Verschiedene 360°-Ansichten dieser Liegenschaft finden Sie auf unserer Homepage:https://www.wacker-immobilien.de/immobilie
Damit wir mit unserer Datenschutzerklärung der EU Datenschutz-Grundverordnung (EU-DSGVO) gerecht werden, kontaktieren Sie uns bitte über unserer Homepage bezogen auf das jeweilige Objekt.
- Massivbau aus dem Jahr 1996
- Wände aus KS-Mauerwerk mit Wärmedämmung
- Fliesen- und Teppichbelag
- Holzfenster mit Isoverglasung, in Teilen mit Bleiverglasung
- Niederdruck-Warmwasser-Zentralheizung mit Flachheizkörpern, im 2. EG Erdgas-Therme
- Blitzschutzanlage
- angeschlossen an der öffentlichen Wasserversorgung, Abwasser, Strom und Erdgas
- auf dem hinteren Grundstücksteil befinden sich die PKW-Stellplätze
- die Anliegerstraße ist asphaltiert, hat einen Rad- und Geweg und eine Straßenbeleuchtung
https://my.matterport.com/show/?m=UdhTFuRtZbg
Die angebotene Immobilie befindet sich in zentraler Lage der Kreisstadt Parchim im Bundesland Mecklenburg-Vorpommern. Die Adresse "Auf dem Heiligen Geisthof 9" liegt am Rand der historischen Altstadt und zeichnet sich durch eine ruhige, aber dennoch hervorragend angebundene Umgebung aus.
Parchim ist die Kreisstadt des Landkreises Ludwigslust-Parchim in Mecklenburg-Vorpommern, 40 km südöstlich liegt die Landeshauptstadt Schwerin. In der amtsfreien Stadt Parchim befindet sich der Verwaltungssitz des Amtes Parchimer Umland, dem zehn Gemeinden angehören. Die Einwohnerzahl liegt bei knapp 17.500 Bürgern.
In "Pütt" wie die Parchimer ihre Stadt liebevoll nennen, vereinen sich Tradition, Natur und Moderne in einzigartiger Weise. Alte Bausubstanz neben Technologiezentren oder Naturschutzgebiete und modernste Verkehrsinfrastruktur.
Parchim ist vielfältig, durch die vielen Einkaufsmöglichkeiten, Schularten, Kindereinrichtungen und durch vieles andere kommen Sie in den Genuss einer gewachsenen Stadt. Selbstverständlich haben Sie die Möglichkeit, auch die Natur zu genießen, sowie an den naheliegenden Wockersee zu spazieren.
Durch Parchim führt die als Müritz-Elde-Wasserstraße kanalisierte Elde.
Die Stadt ist durch private Regionalbahnen (ODEG und OLA) an das Bahnnetz der Deutschen Bahn angeschlossen und bietet regelmäßige Zugverbindungen in Richtung Schwerin, Ludwigslust und darüber hinaus. Ergänzt wird das Angebot durch ein gut ausgebautes Stadt- und Regionalbusnetz.
Auch die Landeshauptstadt Schwerin ist in ungefähr 50 Kilometern von Parchim zu erreichen.
Weiterhin führen die Bundesstraßen B 191 und B 321 sowie die Verkehrsanbindung zur der Bundesautobahn A24 zu zahlreichen anderen Städten wie etwa Hamburg, Rostock oder Berlin.
Baujahr: 1996
Hinweise :
Der Objektverkauf erfolgt im Auftrag einer Körperschaft des öffentlichen Rechts – KÄUFERPROVISIONSFREI !
*Als Mieter/ Pächter/ Käufer zahlen Sie bei Immobilienangeboten mit einer "provisionsfrei"-, "käuferprovisionsfrei-", oder "fehlenden" Kennzeichnung an uns keine Maklerprovision, ausgenommen sind ggf. Provisions- und/ oder Honorarzahlungen des Vermieters/ Verpächters/ Verkäufers!
Unsere Objektangebote basieren grundsätzlich auf qualifizierten Exklusivaufträgen sowie individuellen Rahmenvereinbarungen mit unseren Auftraggebern (ausschließlich die Objekteigentümer). Sollten Sie unsere Objekte anderweitig angeboten bekommen, so sind diese Angebote nicht autorisiert, alternativ so genannte "Trittbrettfahrer","Küchentischmakler", "Geldwäscher" oder andere "Aufpudler".
Kooperationen mit Kollegen oder Doppelinsertionen mit unseren Auftraggebern werden von uns deutlich als solche kenntlich gemacht!
BESICHTIGUNG: Diskrete, straßenseitige Außenbesichtigungen können jederzeit von Ihnen vorgenommen werden. Grundstücks-/ Liegenschaftbegehungen stimmen Sie bitte mit unserem Büro ab. Treffpunkt hierfür ist die straßenseitige Grundstücksgrenze.