Ein Unikat: Neugotische Kirche (Denkmal) mit Park & Gemeindehaus (Erbbaurecht) (verkauft)
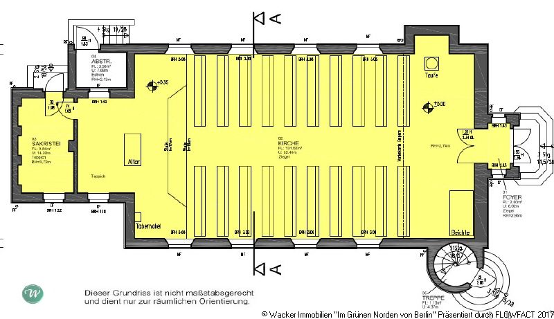
Die Kirche wurde 1910 nach Plänen von Josef K. Tietz errichtet und ist ein rechteckiger Backsteinbau in gotisierenden Formen. Das Gebäude hat Spitzbogenfenster mit farbigen Bleiglaseinfassungen und einen eingezogenen niedrigen Chor. Die Giebel sind durch Blenden gegliedert. Am Westgiebel befindet sich ein Portalvorbau und an der nordwestlichen Ecke schließt sich ein runder Treppenturm zur Empore an. Auf der Südseite steht ein kapellenartiger Anbau mit dem Taufbrunnen. 1957 fand der Rückbau des Glockentürmchen statt. 1995 bis 2000 wurde die Kirche umnfassend renoviert. Die Wohn- und Nutzfläche der Kirche beträgt ca. 174 m².
Zur Liegenschaft gehört auch ein ehemaliges Pfarrhaus, welches ca. 1951 erbaut und über die Jahre modernisiert wurde. Das Erdgeschoss besteht aus 4 Räumen sowie Bad, Küche und Flure mit ca. 127 m² Wohnfläche. Im Obergeschoss finden sich noch 2 Zimmer sowie der Flur und das Bad mit da. 86 m² Wohnfläche. Dieses Gebäude ist teilweise unterkellert. Im Jahr 2000 wurde am Haus die Fassadendämmung mit WDVS ergänzt.
Die Liegenschaft beläüft sich auf eine Grundstücksgröße von ca. 2.562 m² und ist parkähnlich angelegt.
Das Objekt (Kirche) ist in der Liste der Baudenkmale in Gützkow zu finden.
Die Liegenschaft liegt in keinem B-Plangebiet.
Ein Energieausweis ist entsprechend den gesetzlichen Regelungen für diese Nutzungsart der Immobilie nicht vorgeschrieben.
Für das Grundstück wird ein Erbbaurechtsbestellungsvertrag über 99 Jahre angeboten. Der derzeit dingliche Erbbauzins (Erbbauzinsreallast) beträgt monatlich 408,33 € (entspricht 4.900,00 € p.a.).
Versch. Ansichten dieser Liegenschaft finden Sie auf unserer Homepage:https://www.wacker-immobilien.de/immobilie
Damit wir mit unserer Datenschutzerklärung der EU Datenschutz-Grundverordnung (EU-DSGVO) gerecht werden, kontaktieren Sie uns bitte über unserer Homepage bezogen auf das jeweilige Objekt.
- Kirche, Massivbau, Klinkersteine Bj. ca. 1910, Dacheindeckung mit Ziegeln
- schöne Spitzbogenfenster mit Bleiglaseinfassung und farbigen Einsätzen
- Holzeingangstür, Holzdecken
- Fliesen- und Holzböden
- Empore, Sakristei, - runder Treppenturm mit Wendeltreppe
- Wohn- / Nutzfläche ca. 174 m²
- umfassende Renoviertung 1995-2000
- Pfarrhaus, Massivbau, Bj. ca. 1951
1 ½ geschossig mit Satteldach
- Isofenster von 1999
- im EG 4 Räume, Küche und Bad mit Dusche, Flure
- im OG 2 Räume, Bad mit Wanne, Flur
- Zentralheizung, Gastherme Junkers 2007
- Wämedämmung mit WDVS im Jahr 2000
- teilunterkellert, 1 Raum, ca. 29 m²
- im Dachboden ist noch Ausbaureserve
- Wohn- / Nutzfläche ca. 241 m² (mit Teilkeller)
- dazu kommt noch ein massives Nebengebäude und eine Garage (43 m²)
- umfriedetes parkähnliches Gelände mit altem Baumbestaand, Rasenflächen und Sträuchern
- Gehwege gepflastert mit Gehwegplatten bzw. mit Verbundsteinen
- asphaltierte Durchfahrtsstraße mit Gehwegen und Straßenbeleuchtung
- erschlossen mit Strom, Gas, Wasser, Abwasser,
- Glasfaser liegt an
Eine Auskunft aus dem Altlastenkataster zeigt keine Altlasten auf den betreffenden Flächen auf.
Im Baulastenverzeichnis sind aktuell keine öffentlich-rechtlichen Baulasten eingetragen.
Alle Maße, Raumaufteilungen und Quadratmeterangaben sind ca. - Angaben und können abweichen!
Gützkow liegt 20 km südlich der Kreisstadt Greifswald und jeweils 28 km westlich von Wolgast und nordwestlich von Anklam. Südlich wird die Stadt von der Peene begrenzt. Durch das Stadtgebiet fließt die Swinow, die südlich von Gützkow in die Peene mündet. Die Ortschaft wird von ca. 2900 Einwohnern bewohnt.
1994 wurde die Stadt in den Landkreis Ostvorpommern eingegliedert. Seit der Kreisgebietsreform 2011 liegt sie im Landkreis Vorpommern-Greifswald. Gützkow war ab 1992 Sitz des Amtes Gützkow und gehört seit 2005 zum Amt Züssow.
Durch die Stadt führt die Bundesstraße 111 nach Wolgast – seit 2005 mit einer nördlichen Ortsumgehung. Zwei km westlich befindet sich die Anschlussstelle Gützkow an der Bundesautobahn 20 (Rostock–Kreuz Uckermark).
Gützkow verfügt über keinen Bahnanschluss. Der nächstgelegene Bahnhof ist Züssow an der Bahnstrecke Berlin–Stralsund.
Gützkow hat eine Regionale Schule mit Grundschule sowie ein Gymnasium, auch eine Kindertagesstätte befindet sich im Ort.
Baujahr: 1910
Befeuerung/Energieträger: Erdgas leicht
Heizungsart: Zentralheizung
Heizungsart:
Hinweise :
Der Objektverkauf erfolgt im Auftrag einer Körperschaft des öffentlichen Rechts – KÄUFERPROVISIONSFREI !
*Als Mieter/ Pächter/ Käufer zahlen Sie bei Immobilienangeboten mit einer "provisionsfrei"-, "käuferprovisionsfrei-", oder "fehlenden" Kennzeichnung an uns keine Maklerprovision, ausgenommen sind ggf. Provisions- und/ oder Honorarzahlungen des Vermieters/ Verpächters/ Verkäufers!
Unsere Objektangebote basieren grundsätzlich auf qualifizierten Exklusivaufträgen sowie individuellen Rahmenvereinbarungen mit unseren Auftraggebern (ausschließlich den Objekteigentümern). Sollten Sie unsere Objekte anderweitig angeboten bekommen, so sind diese Angebote nicht autorisiert, alternativ so genannte "Trittbrettfahrer","Küchentischmakler", "Geldwäscher" oder andere "Aufpudler". Kooperationen mit Kollegen oder Doppelinsertionen mit unseren Auftraggebern werden von uns deutlich als solche kenntlich gemacht!
BESICHTIGUNG: Diskrete, straßenseitige Außenbesichtigungen können jederzeit von Ihnen vorgenommen werden. Grundstücks-/ Liegenschaftbegehungen stimmen Sie bitte mit unserem Büro ab. Treffpunkt hierfür ist die straßenseitige Grundstücksgrenze.